Menu Home About us ContactENDEPL
;
;
+48 501 545 106
info@astragis.com
LinkedIn
;
Modele 3D

Architects & Developers

Architects & Developers

Architectural surveying enables the preparation of precise as-built documentation of existing buildings – both contemporary and historic. We provide our clients with point clouds, drawings, as well as 3D/BIM models. We also offer usable floor area schedules as well as wall flatness and deformation analyses. Measurements are carried out using modern geodetic technologies and 3D laser scanning, ensuring high accuracy and a complete representation of the building geometry. The acquired data undergo a registration process, during which station coordinates and all parameters required for further work with the point cloud are determined. Our calculations are based on geodetic methods that guarantee reliable quality assessment and full control over the accuracy of the deliverables. As the first team on site, we fully understand that the documentation we prepare forms the foundation for subsequent design stages. We therefore make every effort to ensure that the quality of our work remains at the highest level.
Ortho
Ortho
Ortho
Ortho
A point cloud allows you to work on a precise "3D copy" of an object. When creating 2D drawings or 3D models, reliable and verified measurement data together with the point cloud form the foundation.
Ortho
Ortho
Ortho
Ortho
2D drawings, such as plans, sections and views, are still the most important type of documentation. However, the number of deliverables prepared as 3D models is also steadily increasing.
Ortho
Ortho
Ortho
Ortho
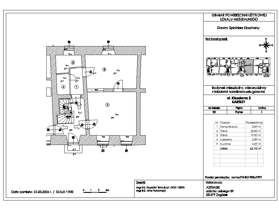
Measuring usable floor area based on laser scanning ensures the required level of accuracy. We prepare area schedules and unit data sheets in accordance with relevant standards and the expectations of our clients.
Ortho
Ortho
Ortho
Ortho
Facade surveying is a separate task that we perform using both laser scanning and photogrammetry. We prepare drawings and orthophotos based on scan data and photographs.
Ortho
Ortho
Ortho
Ortho
Deformation analysis allows the identification of areas where unfavorable phenomena may occur.
Ortho
Ortho
Ortho
Ortho
BIM modeling and 3D models are becoming an increasingly important part of our projects.
Ortho
Ortho
Ortho
Ortho